K
Krzysław
19 Sierpień 2013
No na przykład zrezygnować z Piramidki :D
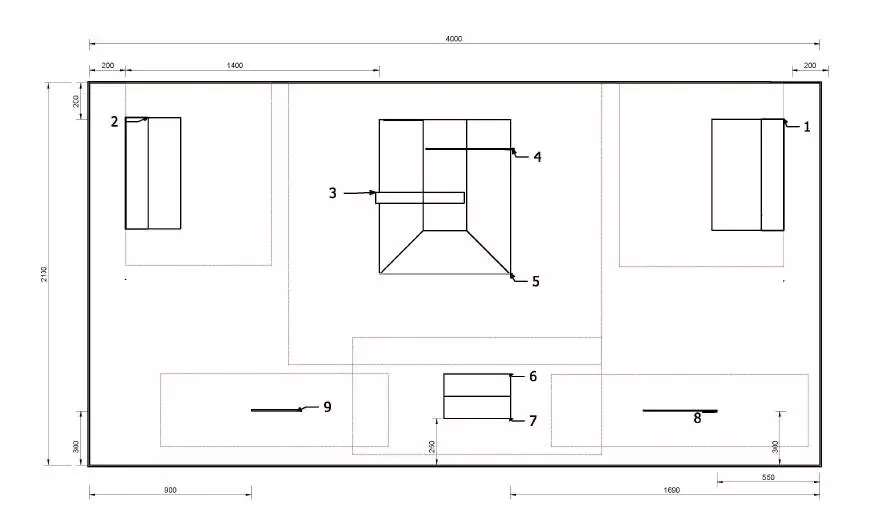
A więc stało się- obietnica władz miasta co do budowy obiektu \"skatepark\" rozpoczyna się. W chwili obecnej to oczywiście tylko rozpoczęcie przetargu, lecz jest to bez wątpienia pierwszy, najważniejszy krok w podjęciu budowy. Przedstawiamy poniżej projekt elementów, z których będą mogli korzystać fascynaci deskorolek i łyżworolek.





